
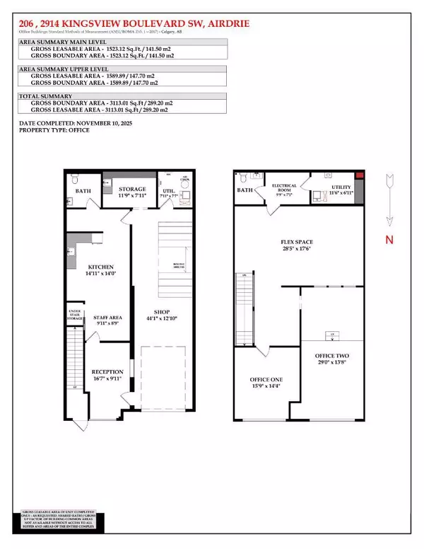
2914 Kingsview BLVD SE #206 Airdrie, AB T4A 0E1
3,113 SqFt
UPDATED:
Key Details
Property Type Commercial
Sub Type Industrial
Listing Status Pending
Purchase Type For Sale
Square Footage 3,113 sqft
Price per Sqft $208
Subdivision Kingsview Industrial Park
MLS Listing ID A2269338
Condo Fees $461
Year Built 2007
Property Sub-Type Industrial
Property Description
Location
Province AB
Zoning IB-1
Direction SE
Interior
Heating Natural Gas, See Remarks
Cooling Partial
Inclusions Office furniture, - desks, chairs, file cabinets, shelving if desired
Fireplace No
Exterior
Utilities Available Cable Connected
Water Access Desc Public
Roof Type Tar/Gravel
Garage No
Building
Lot Description Paved
Dwelling Type Low Rise (2-4 stories)
Foundation None
Sewer Public Sewer
Water Public
Others
Restrictions Airspace Restriction,Call Lister,Condo/Strata Approval
Virtual Tour https://mls.ricoh360.com/b7ee8c7b-80dd-4741-9729-5b0c5dd280d7






